The Sales Center in Wenzhou TOD New Town design by NAN Architects

The Sales Center in Wenzhou TOD New Town design by NAN Architects
 
 
 
 
 
 
 
 
 
 
 
 
 
 
 
 
 
 
 
 
 
 
 
 
 
 
 
 
 
 
 
 
 
Project: The Sales Center in Wenzhou TOD New Town
Location: Shanghai, China
Architects:
NAN Architects
Lead Architect: Xu Nan
Design Team: Huilian Tang,Dingqi Zhou ,Ziyu Cheng ,Wenyu Wang
project year: 2018
 
TOD International New City sales office is an experimental architecture piece designed by NAN Architects. The project is located next to the S1 Railway Technology City Station, at the intersection of Wenzhou Avenue and Yongle Road. It is an undeveloped land. The site is divided into north and south two parts, by the commercial street leading to the railway. The project is located on the northwest side of the site, facing the railway, surrounded by multi-level commercial streets, subway stations, parking lots and other functional areas. "How to create an organic connection between people and the city through porosity is the leading concept of this project.
On the flat land, the project adopts the traditional simple box structure. The large box is divided into three flat boxes and then stacked and staggered to form open terraces, which also resolves the heaviness and depression of the large-scale volume. The vertical atrium enhances the permeability of the building, allowing sunlight and air to penetrate into the building, making people surrounded by nature.
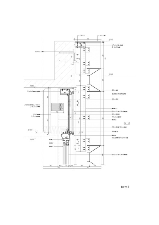
The unique façade pattern features the identity of this building. The hollow façade is made of gold-brown aluminum plates. The structure is consisted by well jointed concave hexagon, which takes 1.2m as the structure span. The façade structure is self-contained and self-supported. The rhythmic façade created by the change in the width of the hexagons not only ensures the integrity of the building but also well fulfills the ventilation and lighting requirement. The opening and closing on the facade perfectly work in concert with the publicity and privacy of the interior space. The relatively public space, such as the model exhibition area, the VIP rooms and the activity center correspond to the sparse façade opening, thereby enhancing the penetration with the external environment; Private spaces such as offices and bathrooms correspond to façades with relatively low opening densities. The organic rhythm of the façade forms a landscape, which intervolves the light, shadow, city, street and people. It has successfully transformed the sales office into an active corner of the urban community, connecting people and the city in a dynamic way.
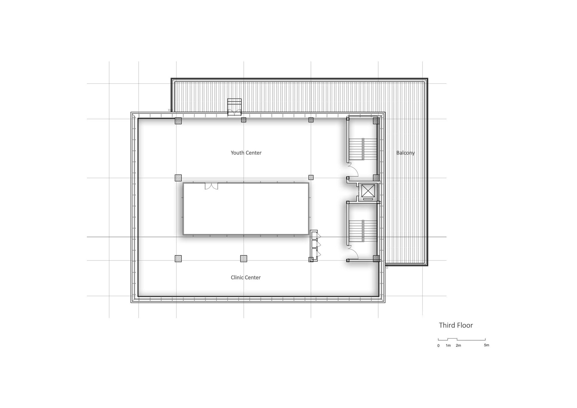
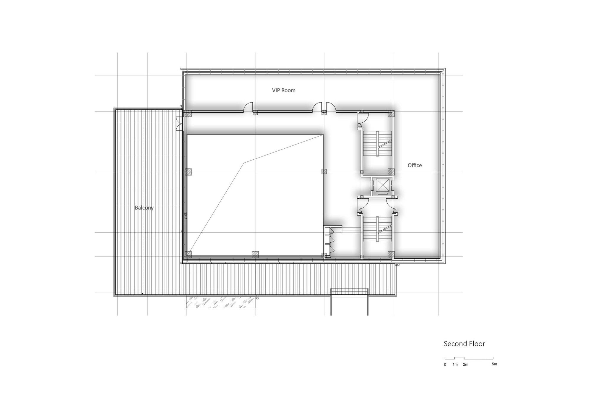
On the left side of the sales office, there is a coffee bar for customer leisure. The model exhibition area is located in the atrium of the hall and connected to the second floor. Visitors can reach the VIP room and offices through either stairs or elevators. The terraces provide open space for outdoor activities. The third floor space is used as youth activity centers and medical offices, as well as outdoor platforms. It is worth mentioning that the overpass that extended from the second floor terrace connects directly from the sales office to the model house, forming a high-efficiency streamline which is independent from the underlying commercial street.
 
Source: NAN Architects
m i l i m e t d e s i g n   –   w h e r e   t h e   c o n v e r g e n c e   o f   u n i q u e   c r e a t i v e s 
TYPE OF WORKS
Sign up to join the millimeterdesign community
Most Viewed Posts
milimet banner
DATAA